
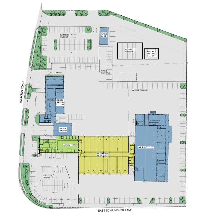
This image shows the overall plan for the expansion.
HUNTSVILLE, AL – The City of Huntsville has been awarded an approximate $3.3 million U.S. Department of Transportation (DOT) grant to expand the City's Heavy Fleet Services facility. According to a news release from the City, Huntsville was the only City in Alabama to receive funds from the program, which was designed to "strengthen transit choices while improving safety and reliability," according to U.S. Transportation Secretary Ray LaHood.
The grant will contribute $3,293,061 for the expansion of the Heavy Fleet Services building and the City of Huntsville will provide the $800,000 balance of the cost for the new building (the total cost is approximately $4.1 million).
The 26,694 square-foot Heavy Fleet expansion will complete the third phase of the City’s plan to improve fleet maintenance operations. The expansion will provide 14 heavy service bays, offices, and a computer and training room. According to the City, the project is scheduled for bids in late spring 2012 with construction to get under way in early summer. The architect is Robert Van Puersem with SKT Architects.
"Huntsville qualified for the grant because we are focused on doing everything possible to streamline our costs and improve our transit system," said Huntsville’s Mayor Tommy Battle. "These funds will help us complete our facility master plan for fleet improvements, and at the end of the day, it will increase our efficiency and save the City a significant amount of money."
The Huntsville Fleet Services Complex maintains all of the City’s vehicles. Three years ago, the Mayor charged City department heads in General Services and Transportation to come up with a plan to improve fleet maintenance’s operations.
"It sounded so simple, but we needed to replace the 1964 roof to improve energy costs, and we needed more room to service vehicles under cover," said General Services Director Jeff Easter. "Our interior is so limited that many repairs take place out of doors, and that means hauling equipment in and out every day if the weather cooperates."
The first phase of the three-phase plan to improve the facility was funded by a 2010 federal stimulus grant, which provided a new $800,000 roof for the building. The new roof has so far cut energy costs by 35 percent and doubled light levels without adding new fixtures, the City's news release stated.
The City funded the second phase of the plan to improve fleet maintenance operations with a $2 million upgrade to the Light Duty Fleet facility, which included $200,000 in new software.
You can view a copy of the floorplan for the new expansion here.










